Projeter votre futur espace
Vous êtes sur le point d’acheter ou de louer un bien, mais vous avez du mal à imaginer votre mobilier dans ce nouvel espace ?
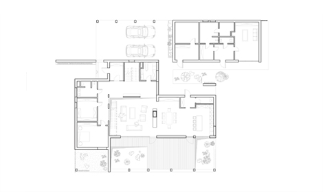
Pas de souci ! Je réalise pour vous des plans 3D pour vous aider à vous projeter facilement dans votre futur logement.
Toutes les formules sont personnalisables en fonction de vos besoins spécifiques, pour que chaque projet soit unique et sur mesure.
Toutes les formules sont personnalisables en fonction de vos besoins spécifiques, pour que chaque projet soit unique et sur mesure.
Premier rendez-vous et première proposition offerts, sans engagement. Créons ensemble un espace qui vous ressemble.
Premier rendez-vous et première proposition offerts, sans engagement. Créons ensemble un espace qui vous ressemble.